Réf : 5851
Exclusif
Nouveauté

Carcassonne (11000) Carcassonne T4 traversant avec 2 balcons et 1 garage

4 Pièce(s)
3 Chambre(s)
1 Salle(s) de bain

Les infos Essentielles

Caractéristiques Valeurs
Code postal 11000
Surface habitable (m²) 83,08 m²
Surface loi Carrez (m²) 83,08 m²
Nombre de chambre(s) 3
Caractéristiques Valeurs
Nombre de pièces 4
Etage 1
Ascenseur NON
Nb de salle de bains 1
Caractéristiques Valeurs
Cuisine Séparée
Balcon OUI
Nombre de garage 1
Cave NON
Caractéristiques Valeurs
Copropriété OUI
nombre de lots 120

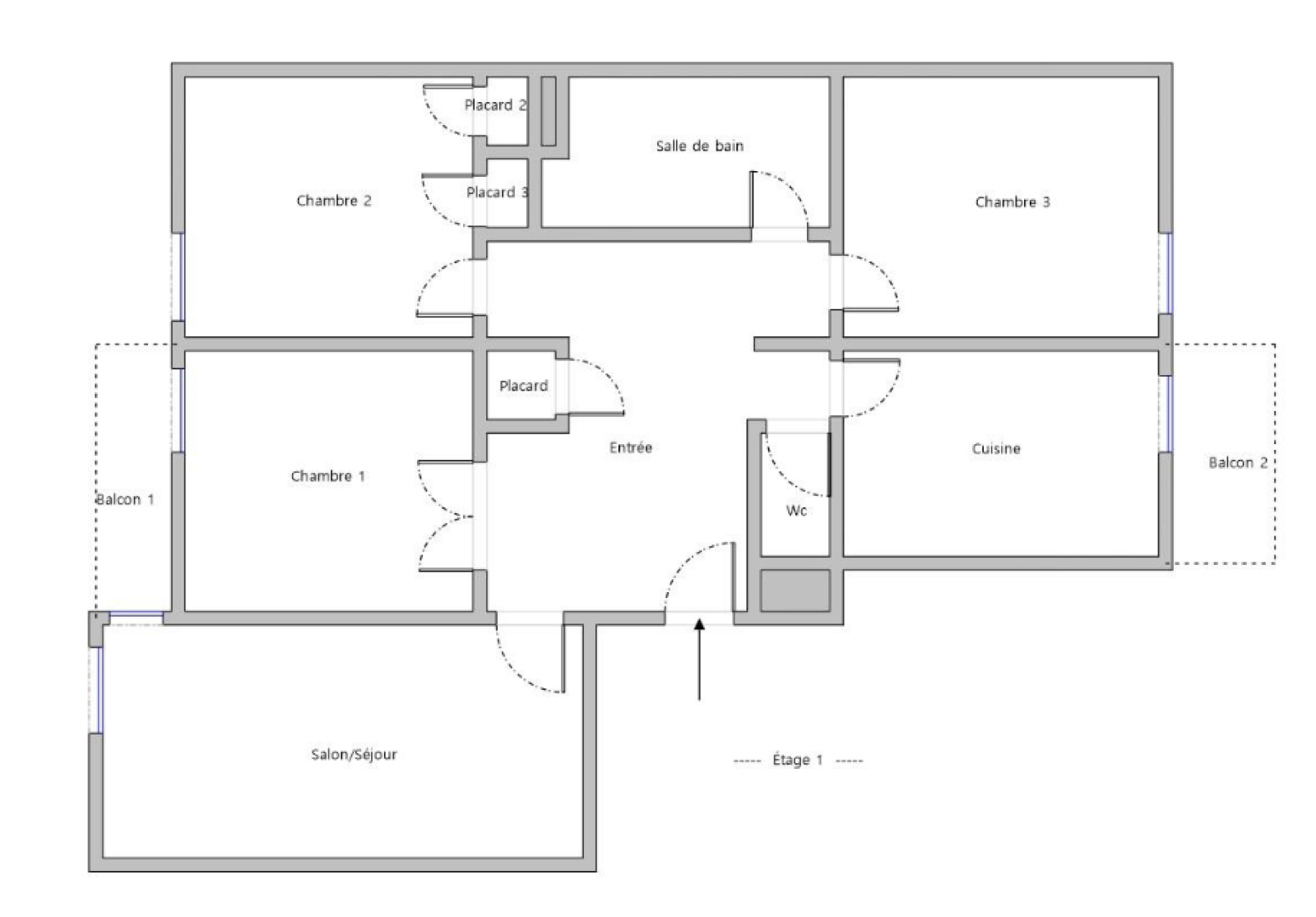
Dans un quartier agréable et proche du centre ville, dans une résidence calme et sécurisée, venez découvrir ce très agréable appartement traversant de type 4 avec ses deux balcons exposés est/ouest et son garage de plus 17m².

L'appartement se situe au premier étage de la résidence (sans asenceur) et se compose comme suit: une entrée, une pièce de vie donnant sur un balcon, une cuisine séparée donnant sur un autre balcon, un WC, un placard, une salle de bain et 3 chambres dont une avec placard.

Cet appartement est équipé d'huisseries en P.V.C double vitrage et de volet bois.

Prévoir un rafraichissement de la cuisine et de la salle de bain.

Montant des charges de copropriété: 1340 euros/an.

Chauffage via chaudière (gaz de ville).

Taxe foncière: 2182 euros.

A venir voir rapidement!

Les infos Financières

Prix de vente honoraires TTC inclus 102 000 €
Taxe foncière annuelle 2 182 €

Les infos Energetiques

DPE GES
DPE en cours
Intéressé(e) par Ce bien ?

* Champ obligatoire

Les informations recueillies sur ce formulaire sont enregistrées dans un fichier informatisé par La Boite Immo agissant comme Sous-traitant du traitement pour la gestion de la clientèle/prospects de l'Agence / du Réseau qui reste Responsable du Traitement de vos Données personnelles. La base légale du traitement repose sur l'intérêt légitime de l'Agence / du Réseau. Elles sont conservées jusqu'à demande de suppression et sont destinées à l'Agence / au Réseau. Conformément à la loi « informatique et libertés », vous disposez des droits d’accès, de rectification, d’effacement, d’opposition, de limitation et de portabilité de vos données. Vous pouvez retirer votre consentement à tout moment en contactant directement l’Agence / Le Réseau. Consultez le site https://cnil.fr/fr pour plus d’informations sur vos droits. Si vous estimez, après avoir contacté l'Agence / le Réseau, que vos droits « Informatique et Libertés » ne sont pas respectés, vous pouvez adresser une réclamation à la CNIL. Nous vous informons de l’existence de la liste d'opposition au démarchage téléphonique « Bloctel », sur laquelle vous pouvez vous inscrire ici : https://www.bloctel.gouv.fr Dans le cadre de la protection des Données personnelles, nous vous invitons à ne pas inscrire de Données sensibles dans le champ de saisie libre.
Ce site est protégé par reCAPTCHA, les Politiques de Confidentialité et les Conditions d'Utilisation de Google s'appliquent.
contacter l'agence
Ces biens peuvent aussi vous intéresser
Limoux (11300)

Proche Limoux - Maison de village de 75 m² habitable

Limoux (11300)

Proche Limoux - Maison de village de 75 m² habitable

Nous suivre sur